Without Partition Click to view
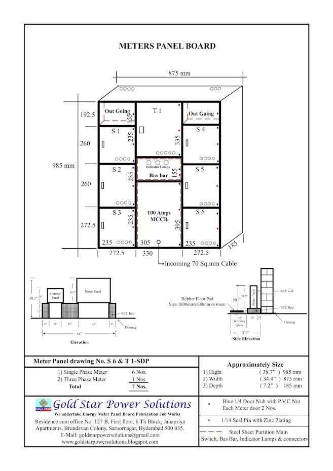
Meter Panel Board Specifications Click to view
TSSDCL Department Recommend Steel Sheet 14 Gauge Estimate Rate Click to view
TSSDCL Department Recommend 4 Sq mm Wire & 6 Sq mm Click to view
Estimate of Meter panel board Click to view

